Home
Contact
More
Home
Contact
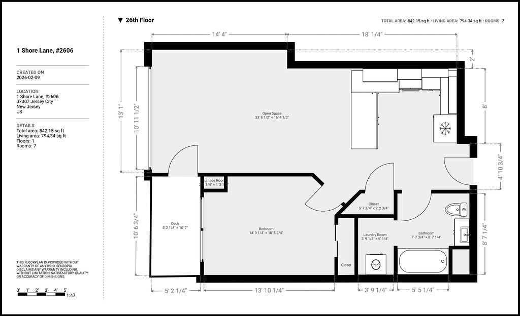
1 Shore Lane, JC Unit #2606