Home
Contact
More
Home
Contact
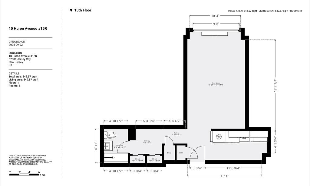
10 Huron Unit #15R