Home
Contact
More
Home
Contact
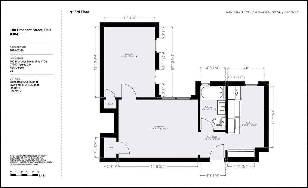
100 Prospect, JC Unit #304