Home
Contact
More
Home
Contact
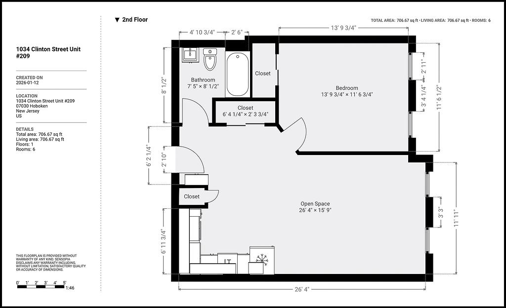
1034 Clinton, Unit #209 (Updated)