Home
Contact
More
Home
Contact
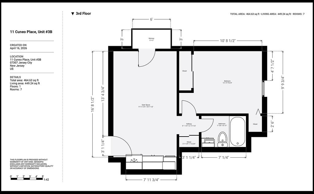
11 Cuneo Place, Unit #3B