Home
Contact
More
Home
Contact
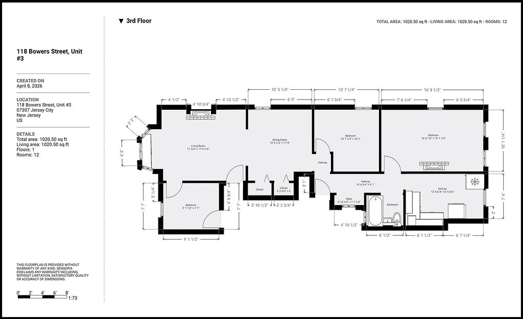
118 Bowers, Unit #3