Home
Contact
More
Home
Contact
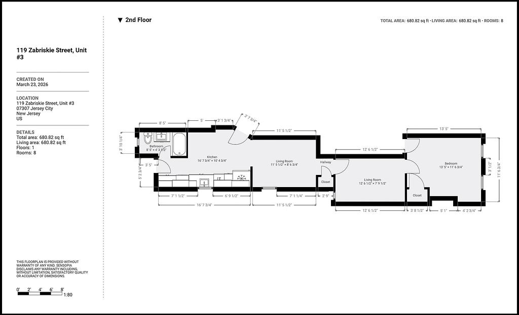
119 Zabriskie St, Unit #3