Home
Contact
More
Home
Contact
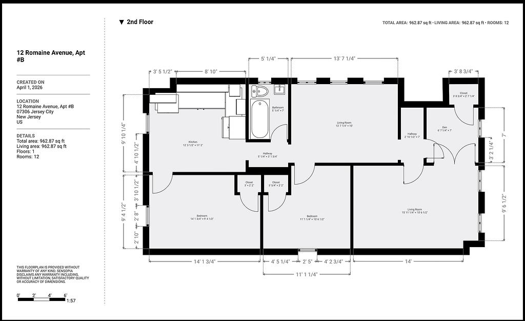
12 Romaine, JC Unit #B