Home
Contact
More
Home
Contact
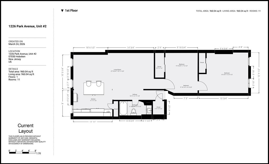
1226 Park - Part. 2