Home
Contact
More
Home
Contact
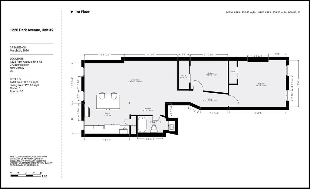
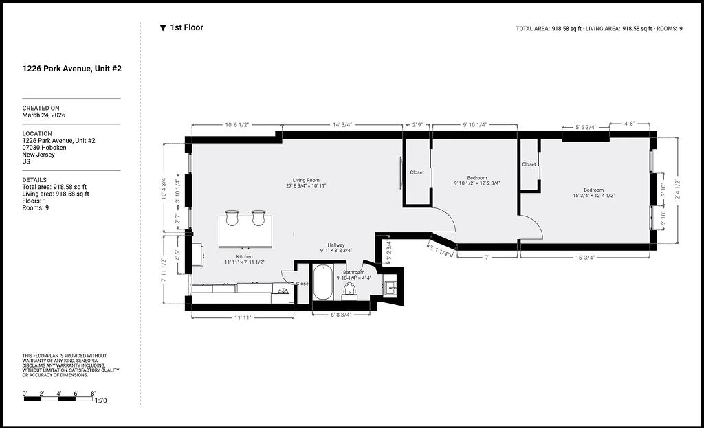
1226 Park, Unit #2