Home
Contact
More
Home
Contact
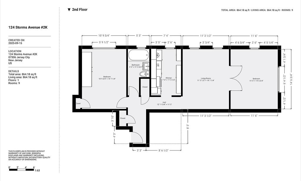
124 Storms Ave, Unit #2K