Home
Contact
More
Home
Contact
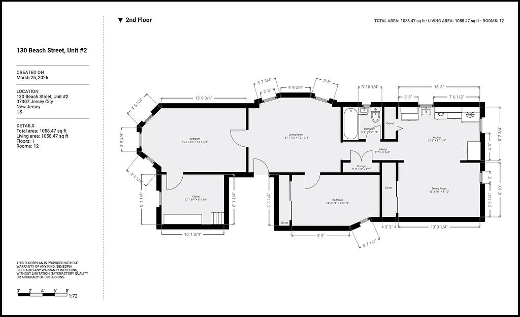
130 Beach Street, Unit #2