Home
Contact
More
Home
Contact
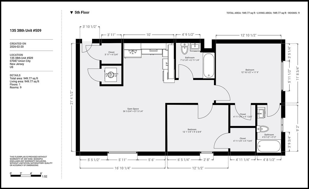
135 38th street, UC Unit #509