Home
Contact
More
Home
Contact
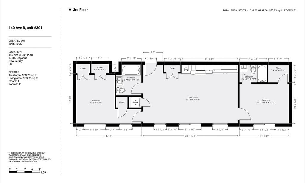
140 Ave B, Bayonne Unit #301