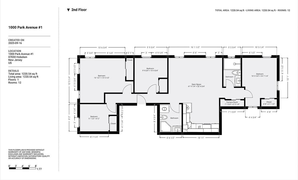
Home
Contact
More
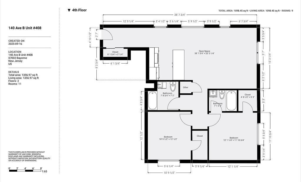
Home
Contact
140 Ave B, Bayonne Unit #408