Home
Contact
More
Home
Contact
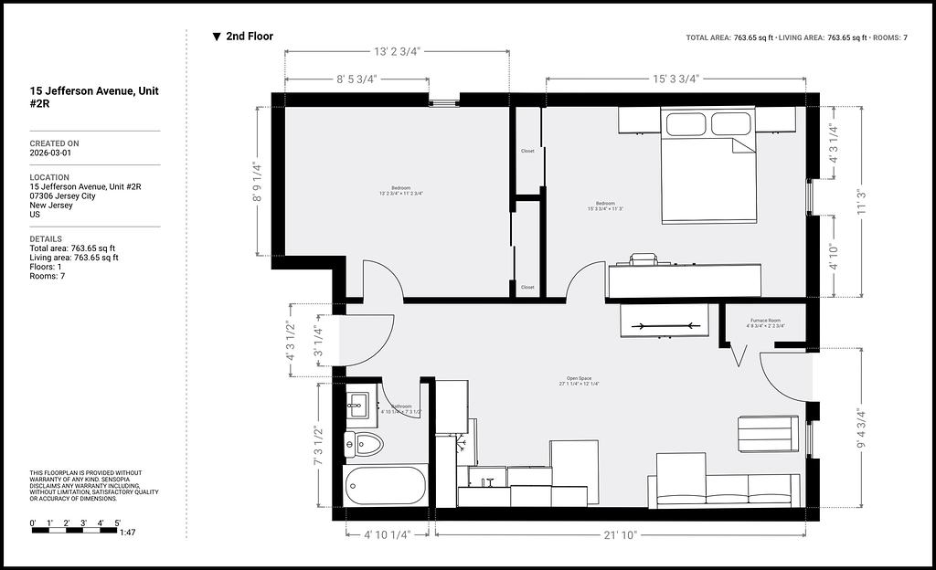
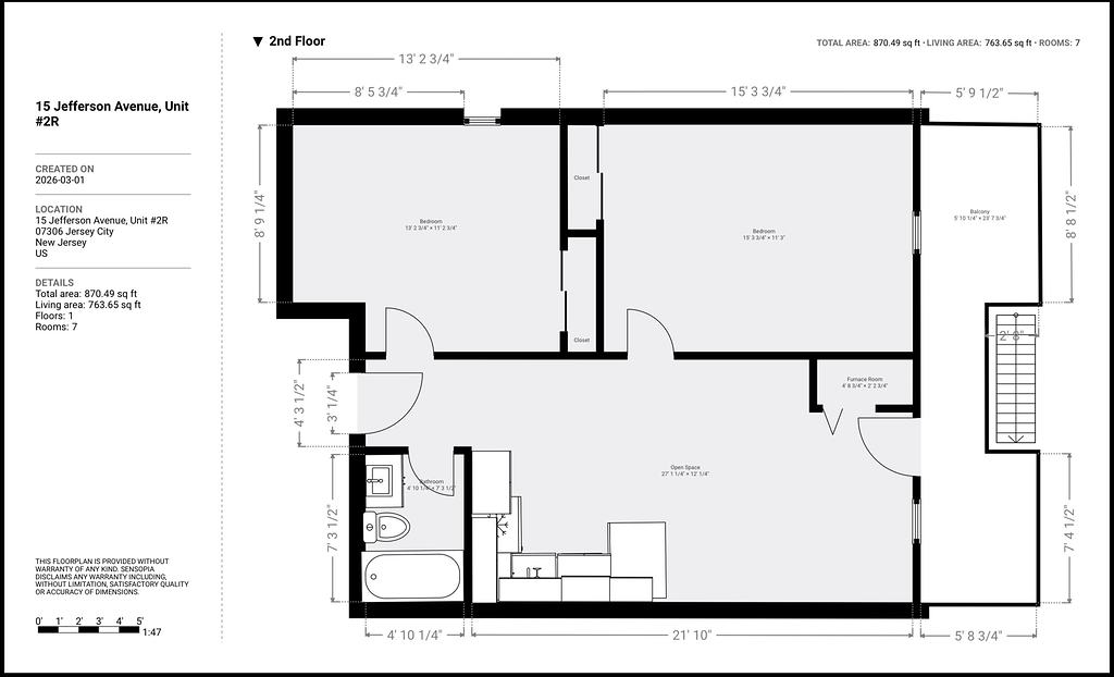
15 Jefferson Ave, JC Unit #2R - Floor Plan Draft