Home
Contact
More
Home
Contact
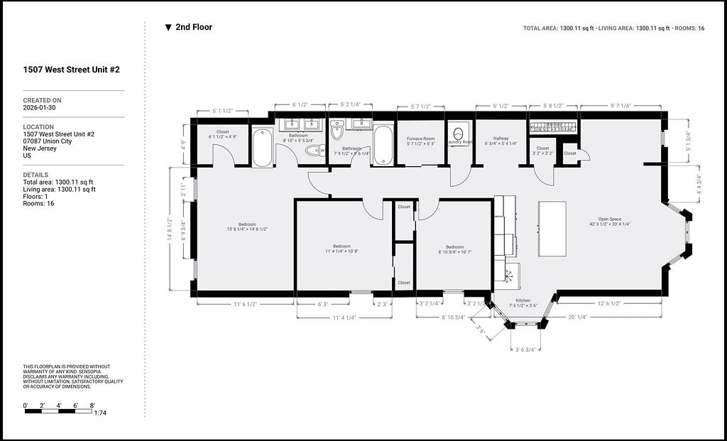
1507 West, UC Unit #2