Home
Contact
More
Home
Contact
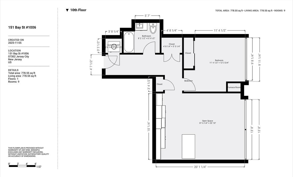
151 Bay St, JC Unit #1006