Home
Contact
More
Home
Contact
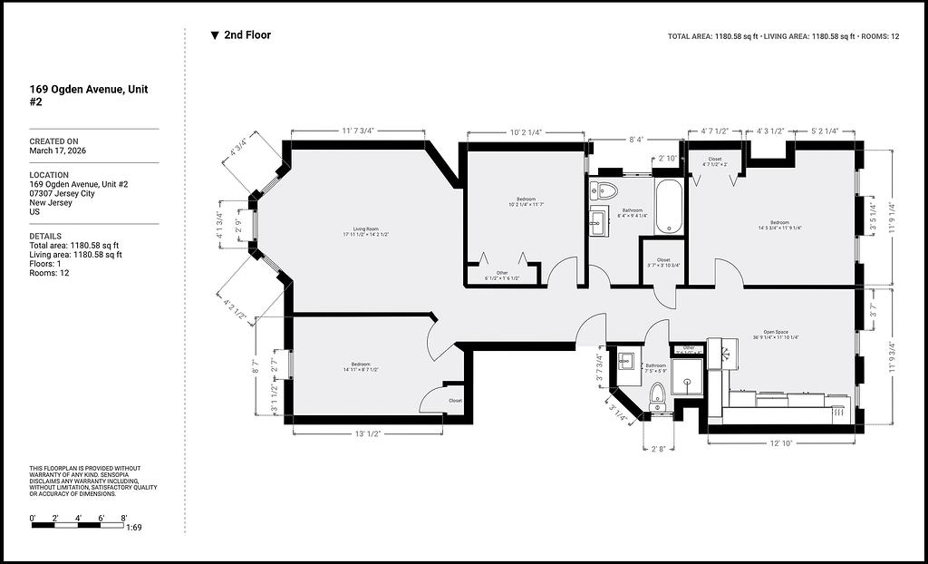
169 Ogden Ave, Unit #2