Home
Contact
More
Home
Contact
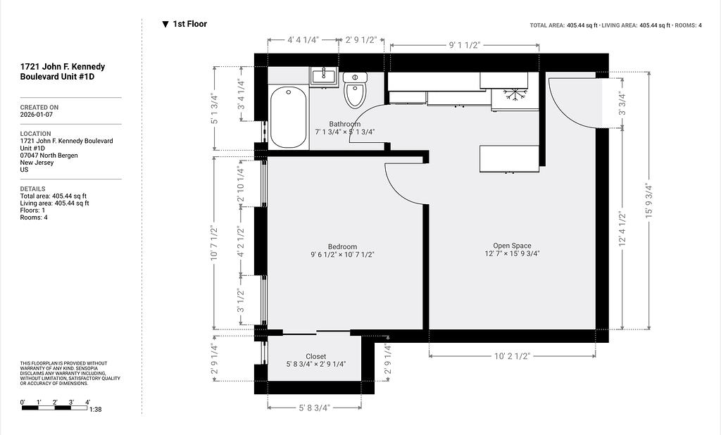
1721 JFK Unit #1D