Home
Contact
More
Home
Contact
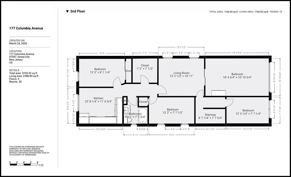
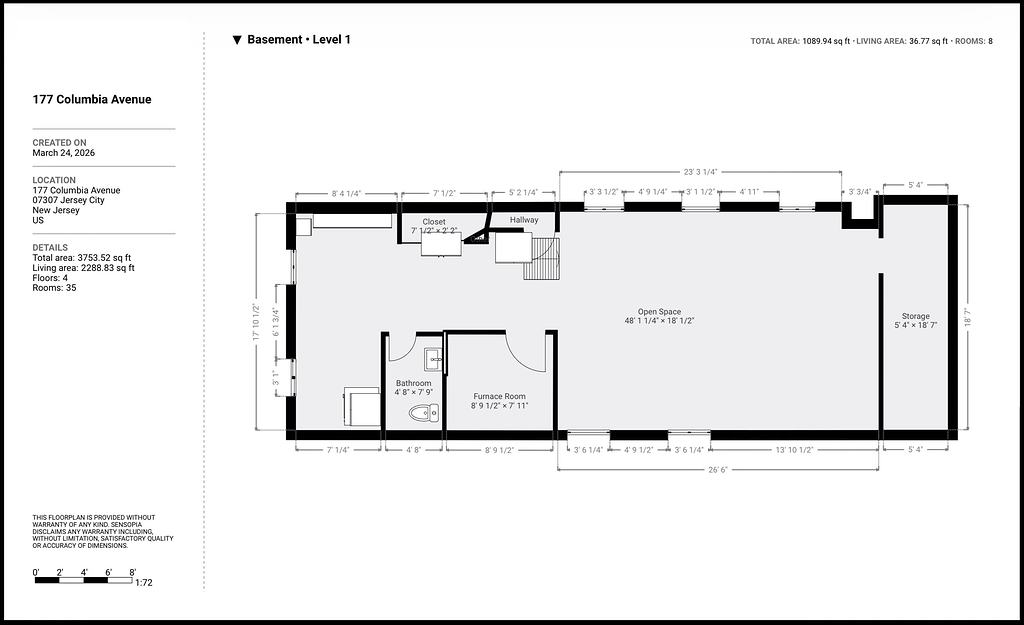
177 Columbia Ave, JC - Drone/Floor Plan Draft