Home
Contact
More
Home
Contact
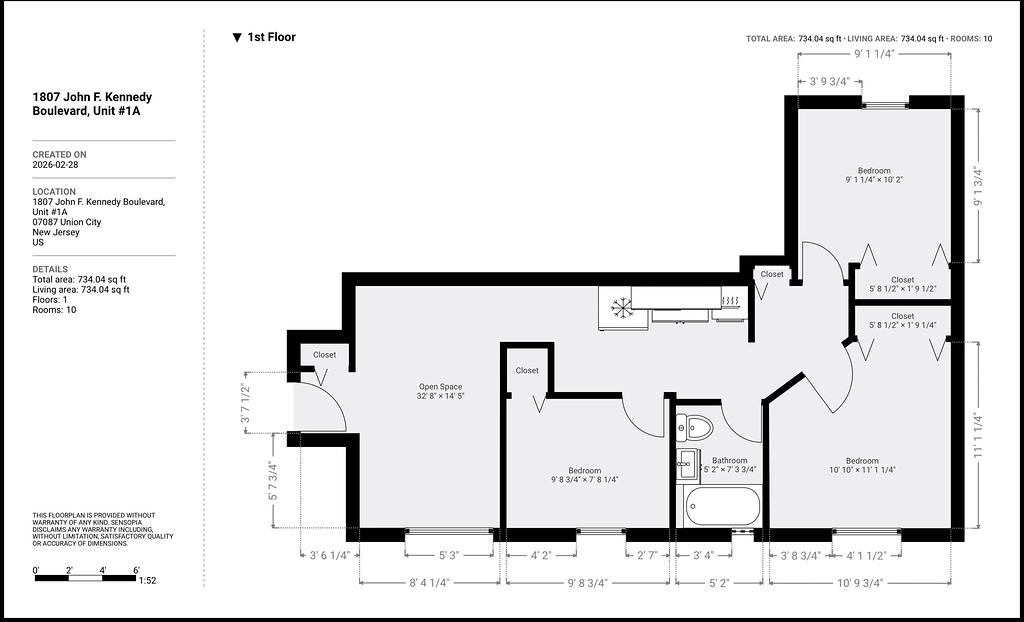
1807 JFK, NB Unit #1A