Home
Contact
More
Home
Contact
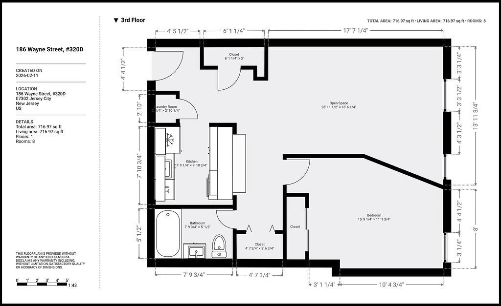
186 Wayne , JC Unit #320D