Home
Contact
More
Home
Contact
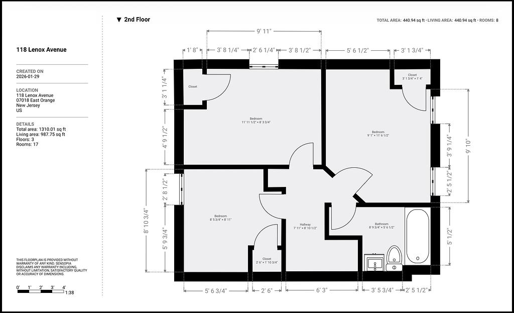
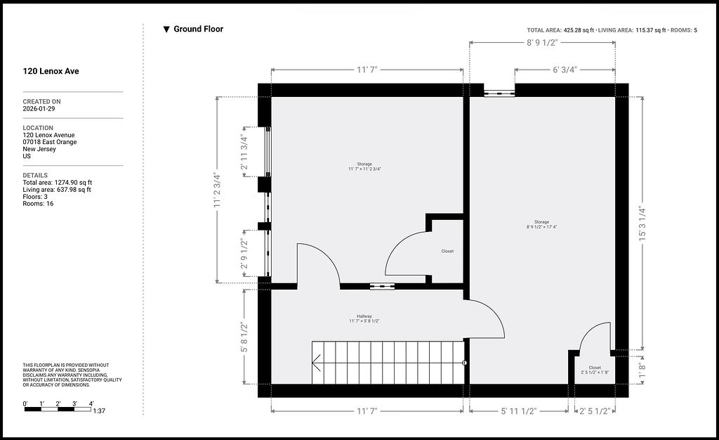
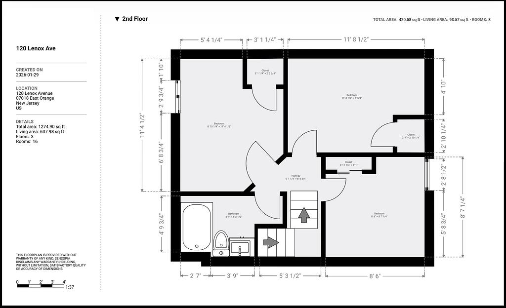
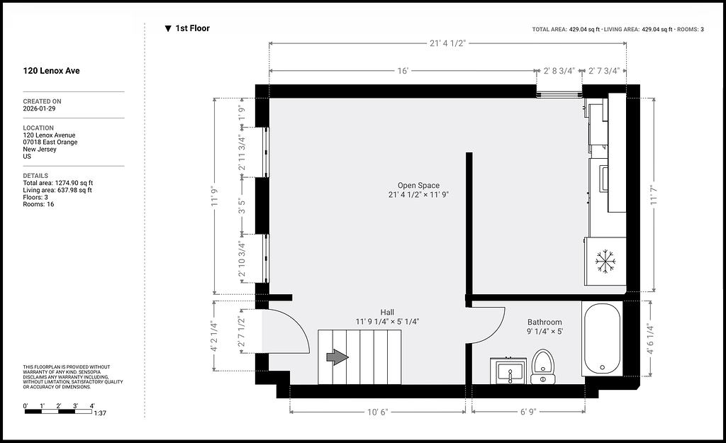
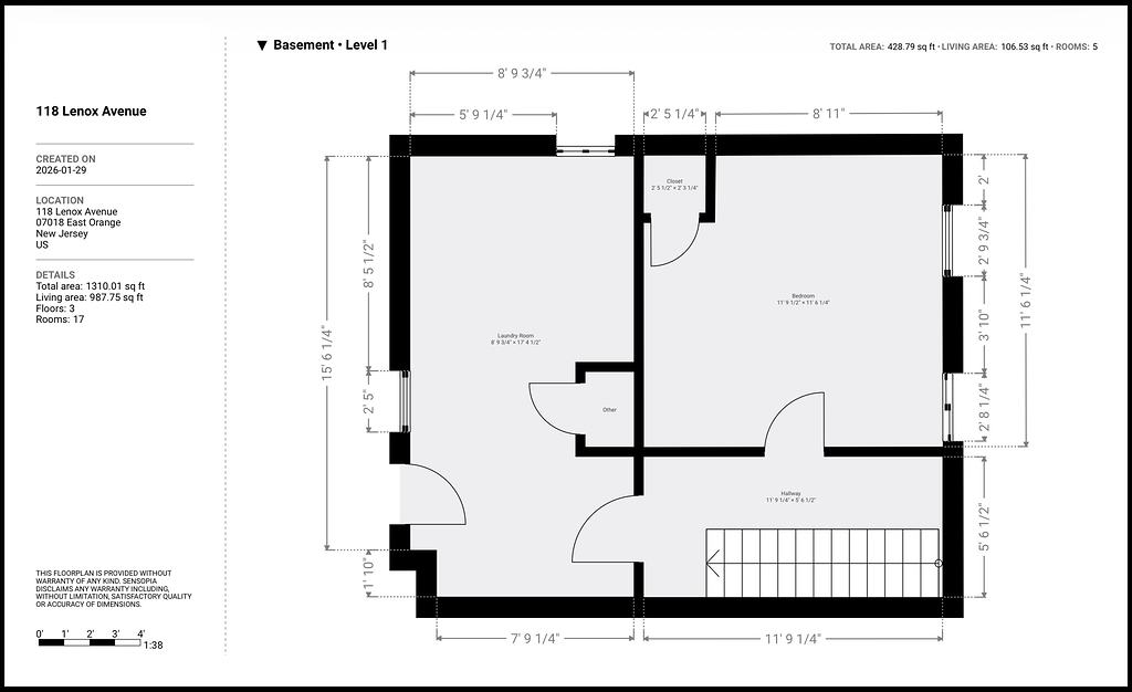
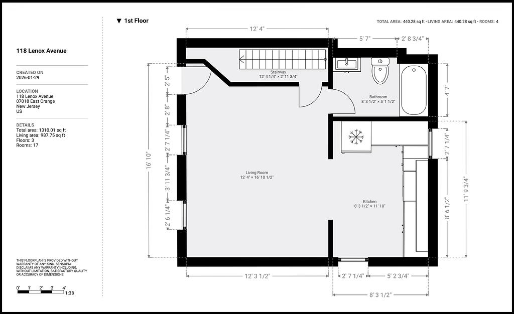
118/120 Lenox Ave, East Orange - Floor Plan Design