Home
Contact
More
Home
Contact
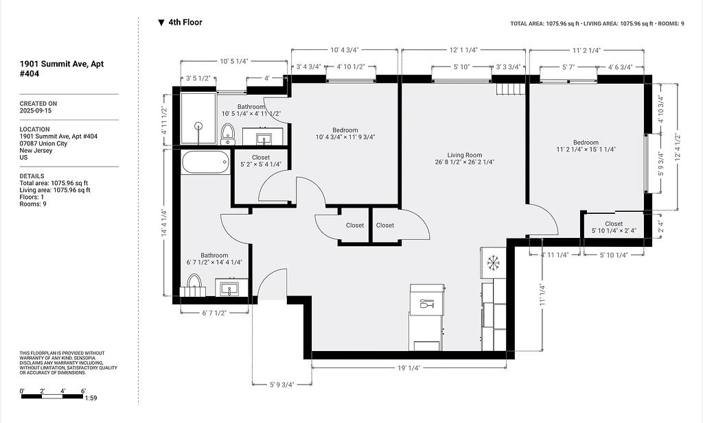
1901 Summit Ave, Unit #404