Home
Contact
More
Home
Contact
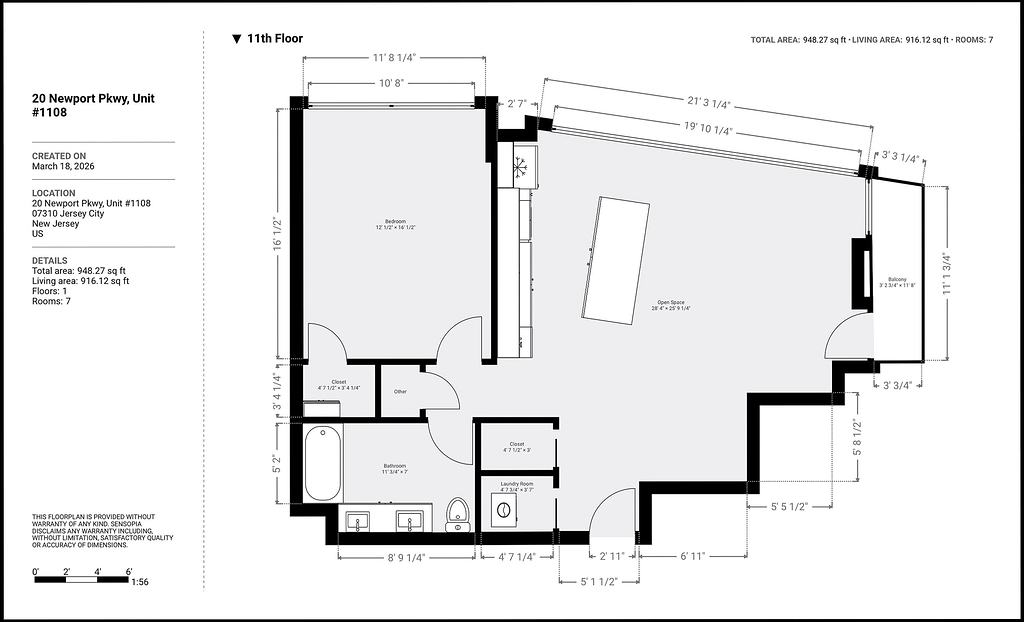
20 Newport Pkwy, Unit #1108
Load More