Home
Contact
More
Home
Contact
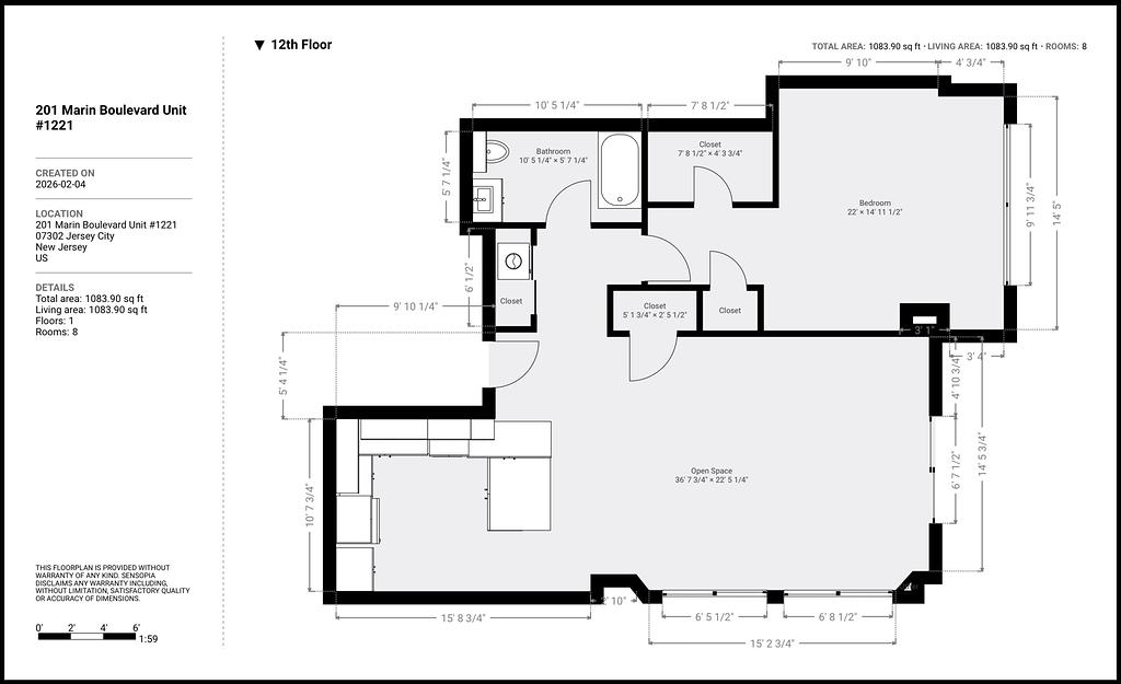
201 Marin Blvd, Unit #1221