Home
Contact
More
Home
Contact
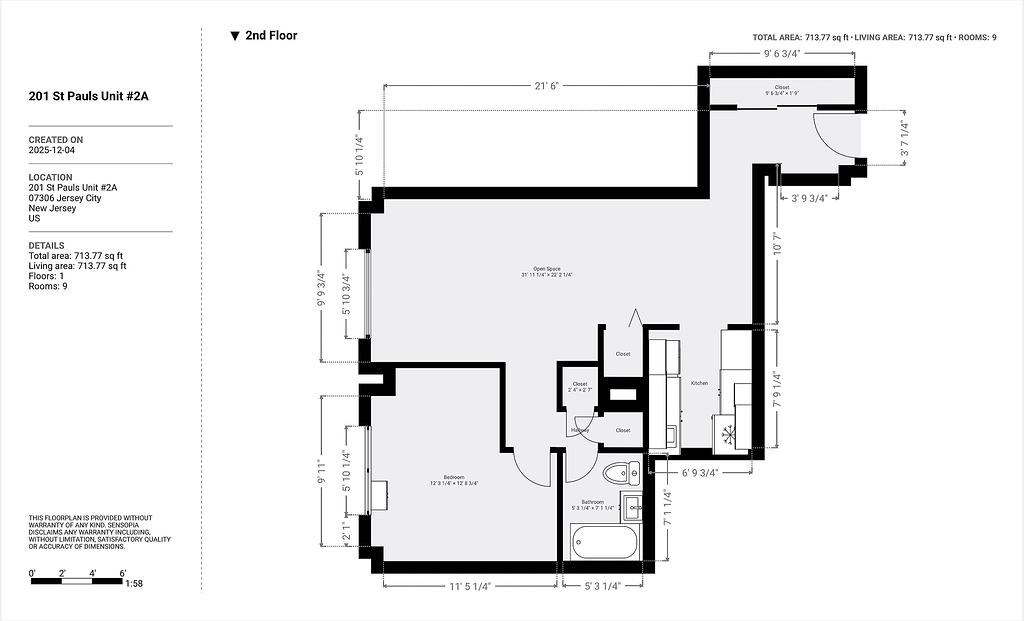
201 St Pauls, Unit #2A