Home
Contact
More
Home
Contact
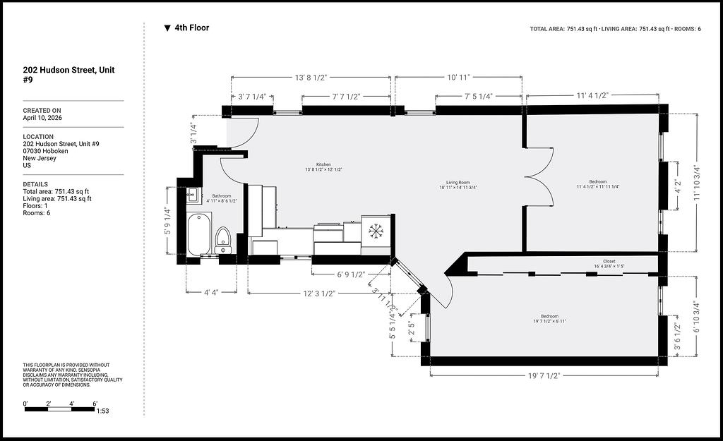
202 Hudson, Unit #9