Home
Contact
More
Home
Contact
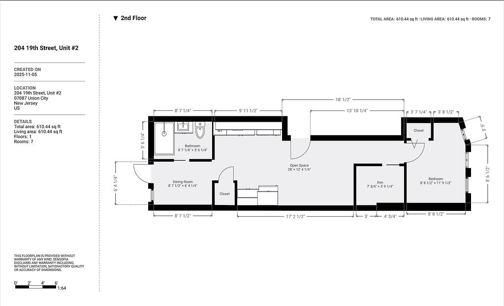
204 19th St, UC Unit #2