Home
Contact
More
Home
Contact
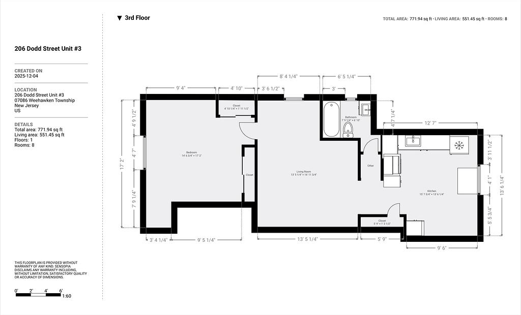
206 Dodd Street, Unit #3