Home
Contact
More
Home
Contact
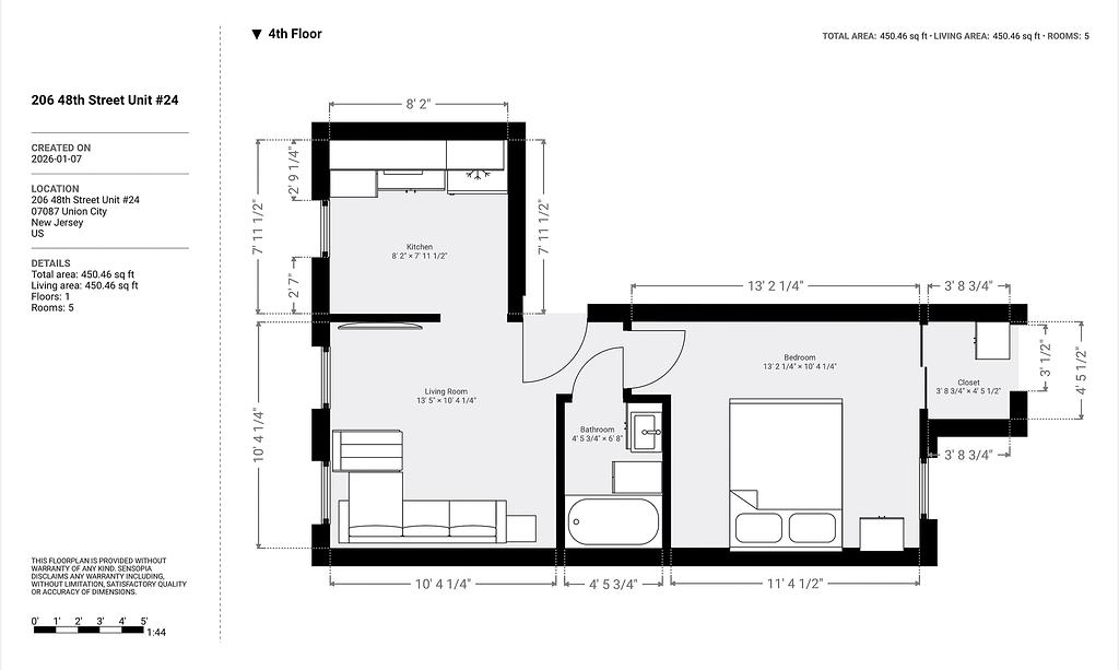
208 48th Street, Union City Unit #24