Home
Contact
More
Home
Contact
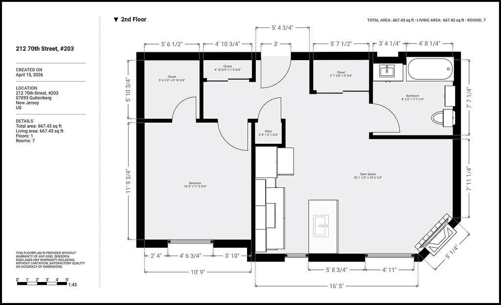
212 70th Street,Unit #203