Home
Contact
More
Home
Contact
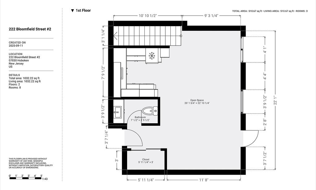
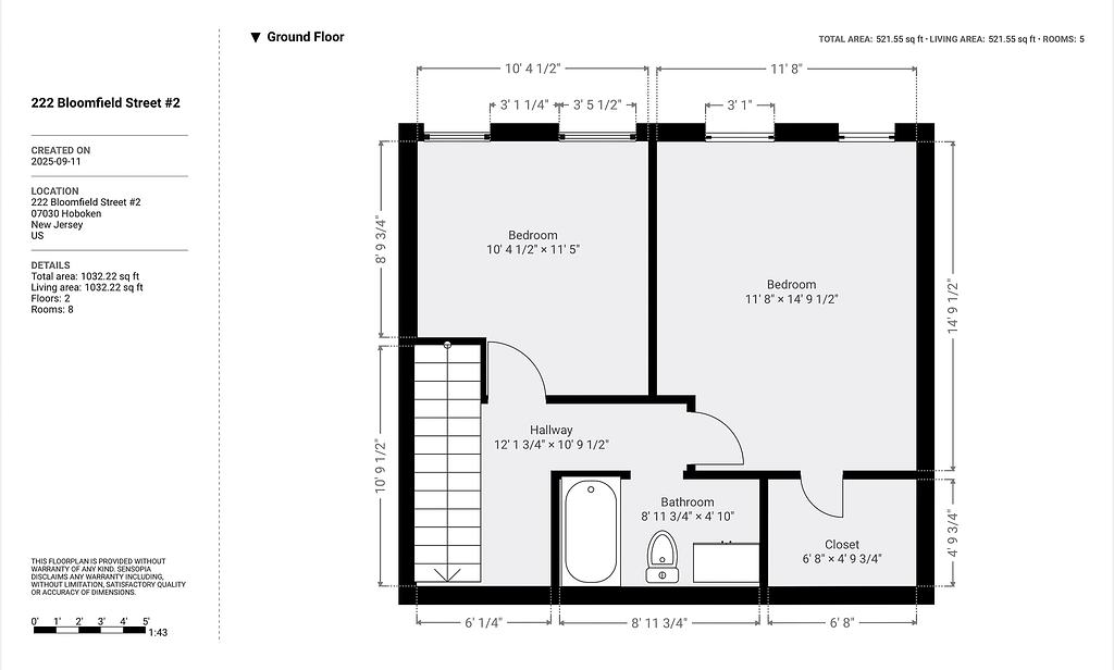
222 Bloomfield St, Unit #1
Load More