Home
Contact
More
Home
Contact
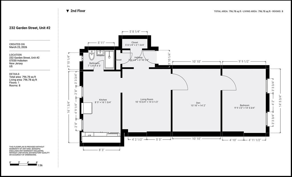
232 Garden Street, Hoboken Unit #2