Home
Contact
More
Home
Contact
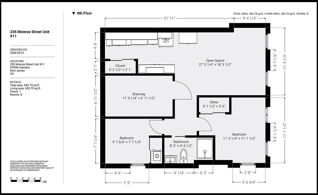
235 Monroe St, Unit #11