Home
Contact
More
Home
Contact
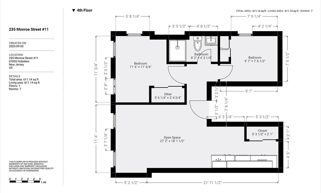
235 Monroe, Unit #11