Home
Contact
More
Home
Contact
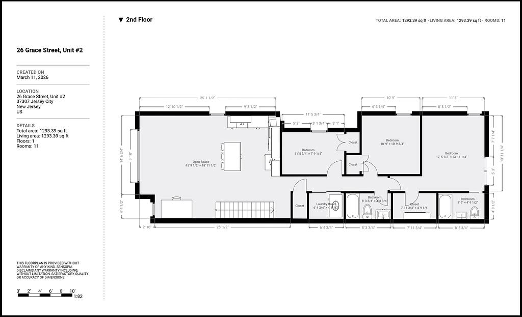
26 Grace, JC Unit #2