Home
Contact
More
Home
Contact
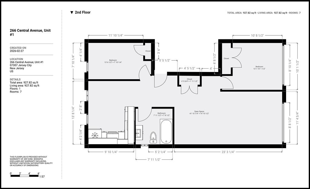
266 Central Ave, JC Unit #1
Load More