Home
Contact
More
Home
Contact
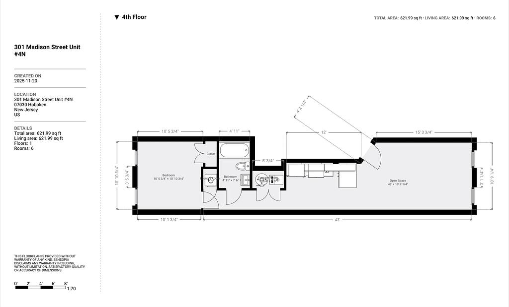
301 Madison, Unit #4N