Home
Contact
More
Home
Contact
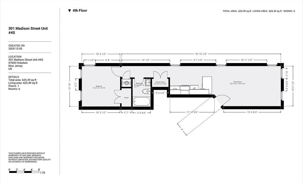
301 Madison Unit #4S