Home
Contact
More
Home
Contact
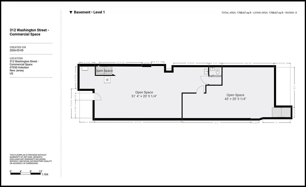
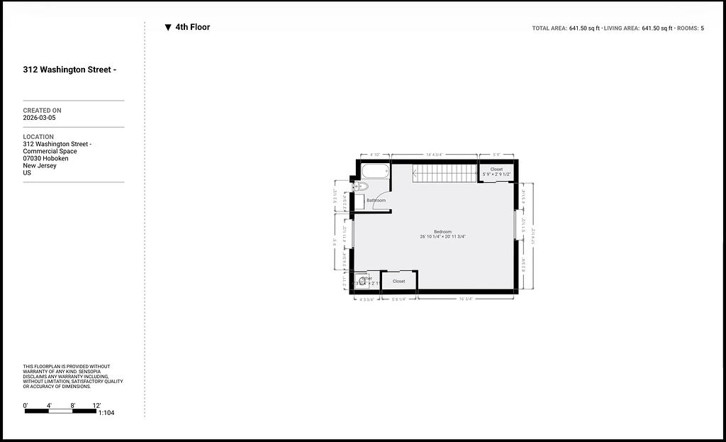
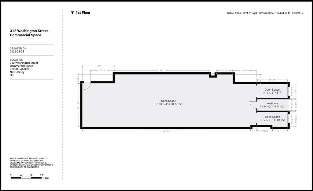
312 Washington Street - Floor Plan Draft