Home
Contact
More
Home
Contact
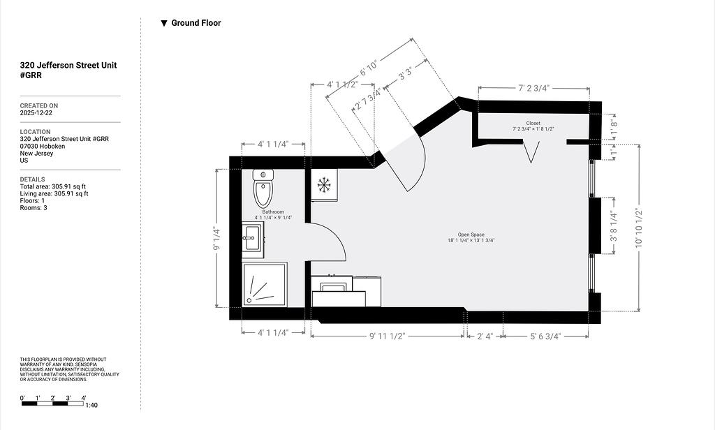
320 Jefferson Street, Unit #GRR