Home
Contact
More
Home
Contact
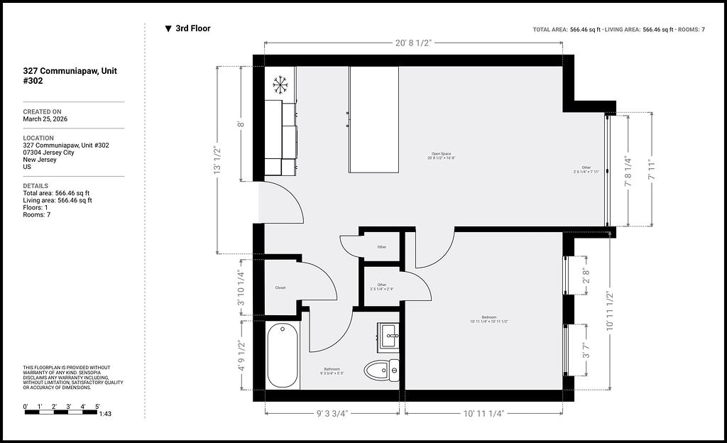
327 Communipaw Ave, Unit #302