Home
Contact
More
Home
Contact
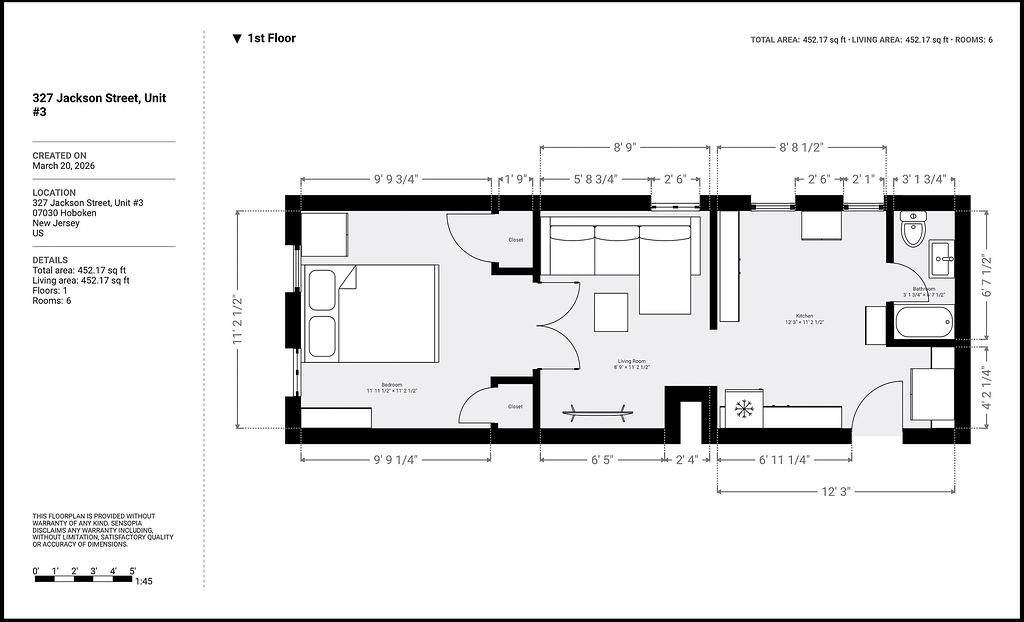
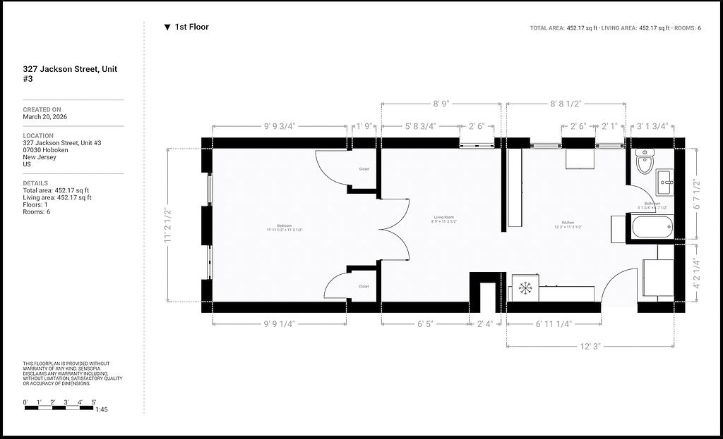
327 Jackson
Load More