Home
Contact
More
Home
Contact
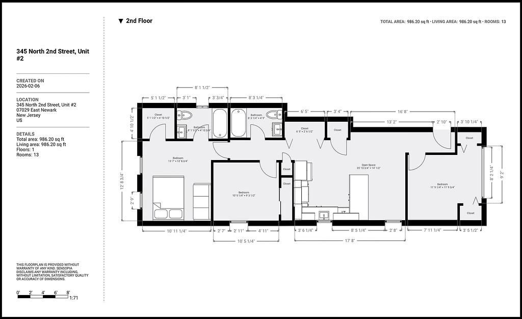
345 North,2nd St, East Newark - Unit #2