Home
Contact
More
Home
Contact
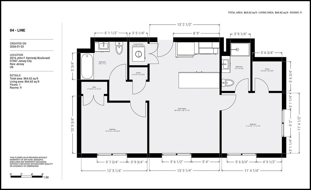
3516 JFK, Unit #504