Home
Contact
More
Home
Contact
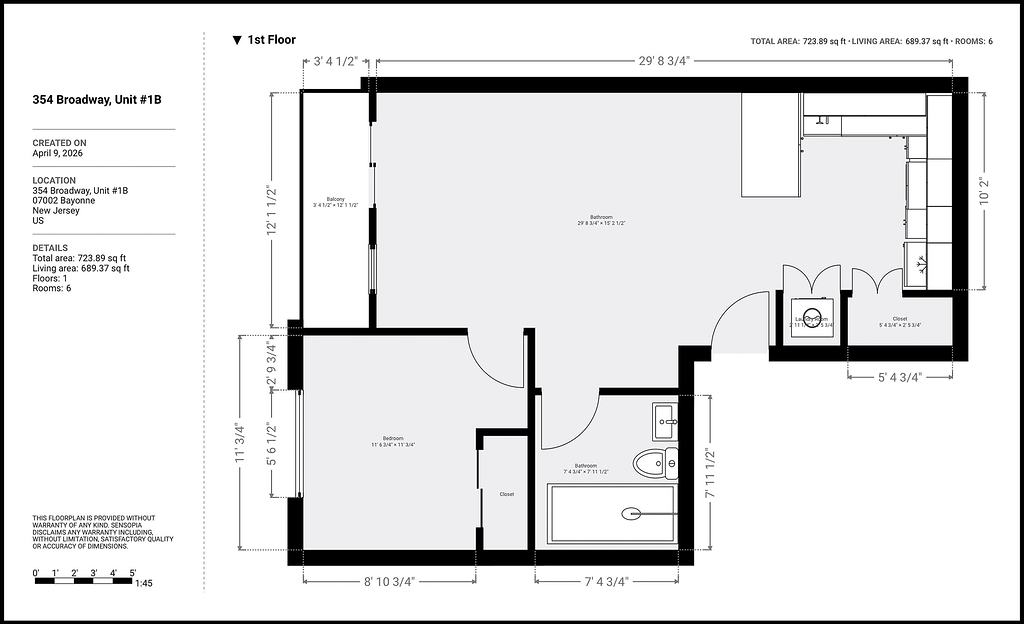
354 Broadway, Bayonne - Unit #1B