Home
Contact
More
Home
Contact
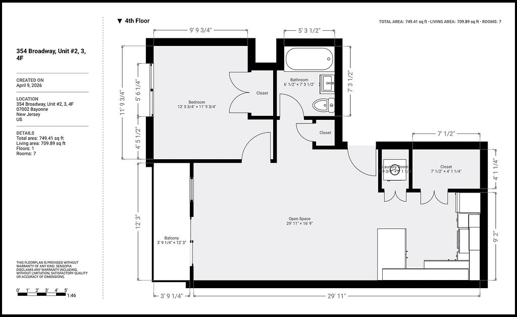
354 Broadway, Bayonne - Units #2,3,4F