Home
Contact
More
Home
Contact
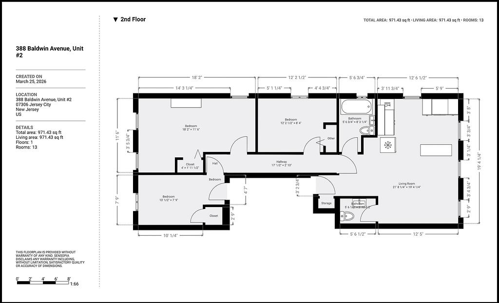
388 Baldwin Ave, JC - Unit #2